| 内容 |
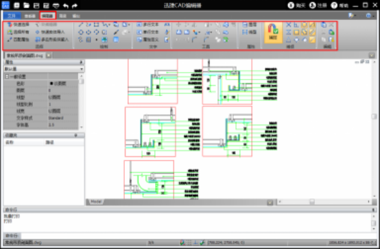
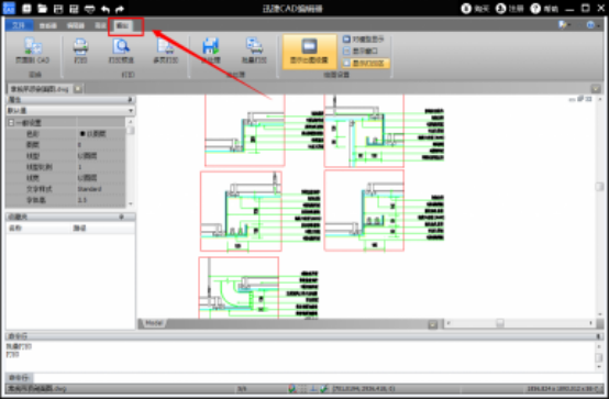
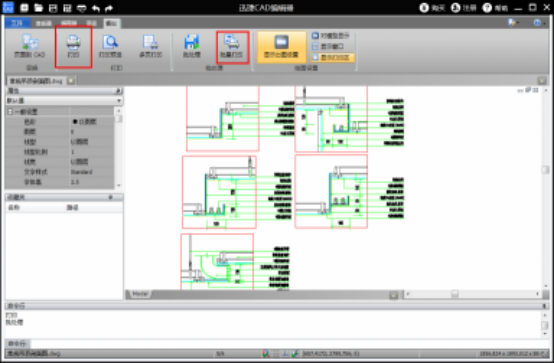
迅捷CAD编辑器是一款集合了查看、编辑CAD图纸功能于一体的实用工具,它还可以将DWG等格式图纸文件打印出来,方便我们随时随地进行查看。那么,我们如何在编辑好文件后将其打印出来呢?下面是迅捷CAD编辑器打印文件的具体方法教程。 迅捷CAD编辑器怎么打印出文件? 1、先在电脑上安装好迅捷CAD编辑器,双击运行软件如图。  2、接下来,我们在软件上打开文件,在“编辑器”菜单中,借助工具对文件进行编辑、修改。  3、当我们完成文档编辑后,我们便可以将文档打印出来了。点击软件菜单栏上的“输出”。  4、这时候我们可以看到多种文件打印方式,4. 你的每一段经历都会把你的胸怀拓宽一点点,使得它作为一个接收容器,能容纳下尽量多的幸福。一般情况下,我们可以先点击“打印预览”,查看一下文档打印后的显示。  5、接下来单击“打印”,将设置好的文件打印出来即可。要是需要批量打印文件,也可以点击“批量打印”按钮。  通过以上几步骤,我们就可以将编辑好的CAD文件打印出来,方便我们进行查看。 迅捷CAD编辑器输出图纸文件的操作方法大雾迷瓢泼心惊肉跳大雨途26. 宽容如水。宽容,即原谅他人的过错,不耿耿于怀,不锱铢必较,和和气气,做个大方的人。宽容如水般的温柔,在遇到矛盾时,往往比过激的报复更有效。它似一泓清泉,款款抹去彼此一时的敌视,使人冷静清醒。I’m determined to…41.不在其位,不谋其政。 水远,怎知流水外,却是乱山尤远。天涯梦短,想忘了绮疏雕槛。望不尽冉冉斜阳,抚乔木年华将晚。但数点红英,犹识西园凄婉。诸葛大名垂宇宙,宗臣遗像肃清高。迅捷cad编辑器,cad编辑器There is no evidence to suggest that… |